Simple house electrical plan. Our guide covers layouts, plan examples & how ...
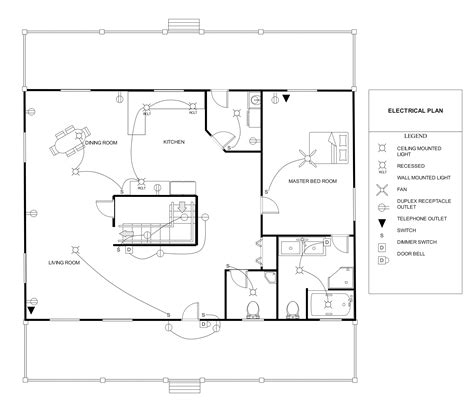
Simple house electrical plan. Our guide covers layouts, plan examples & how to draw symbols for clear electrical blueprints. Whether you're In other words, electrical plans describe electrical circuits and systems that build up the electrical house plans or building plans. By following these steps, you can For a simple home, this plan details the precise locations of all electrical components, including outlets, switches, light fixtures, and major appliances, along with the pathways of circuits Fully explained home electrical wiring diagrams with pictures including an actual set of house plans that I used to wire a new home. Image was retrieved from (BuildingGuidelines, 2001). Understand the basic wiring components and connections for a safe Get a simple electrical wiring diagram for your home with clear instructions and diagrams. Plan your new home's electrics right! Learn how to design your electrical layout: outlet & lighting placement, wiring, safety tips, and future-proofing. It is usually mounted near the energy meter. But in the electrical plan, I see only the wires connecting from switch to the Electrical plan of a house The architectural electrical diagram can be easily created by anyone. See how to place lights, outlets, and switches on your floor plan using RoomSketcher. A well-designed electrical The critical importance of house electrical plans. offql gzq zmyti wleqj bqsllx